CASA BELLAVISTA

El proyecto consolida la estructura interior, recupera materiales originales, uniformiza con nuevos de misma calidad, manteniendo el carácter tradicional de la vivienda en casco antiguo, uniendo 2 viviendas para el uso familiar, combinando esta base con elementos modernos buscando reflejar el carácter de los propietarios.

FECHA:

09/07/2025

CATEGORÍA:

UBICACIÓN:

Barrio de La lonja, Palma

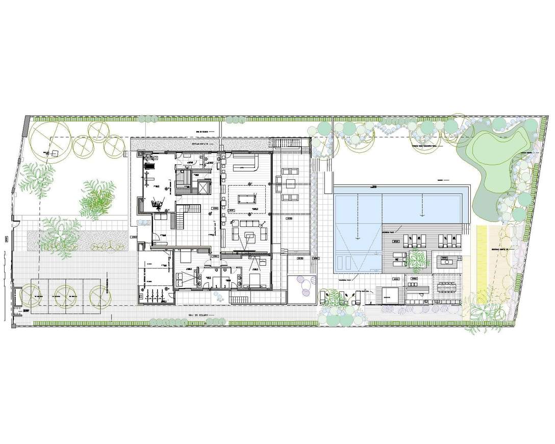
PLANOS

GALERÍA DE IMÁGENES

Logotipos Digitalizadores
Ir al contenido